Toronto District School Board
Skip to main content

York-Memorial-Collegiate-Institute-Rebuild-and-School-Consolidation

Front entrance background picture
IN CONSTRUCTION
SCHOOL REPLACEMENT

YORK MEMORIAL COLLEGIATE INSTITUTE REBUILD AND SCHOOL CONSOLIDATION

A reconstruction of the original school following a catastrophic fire.

Project Address 2690 Eglinton Ave W, Toronto, M6M 1T9

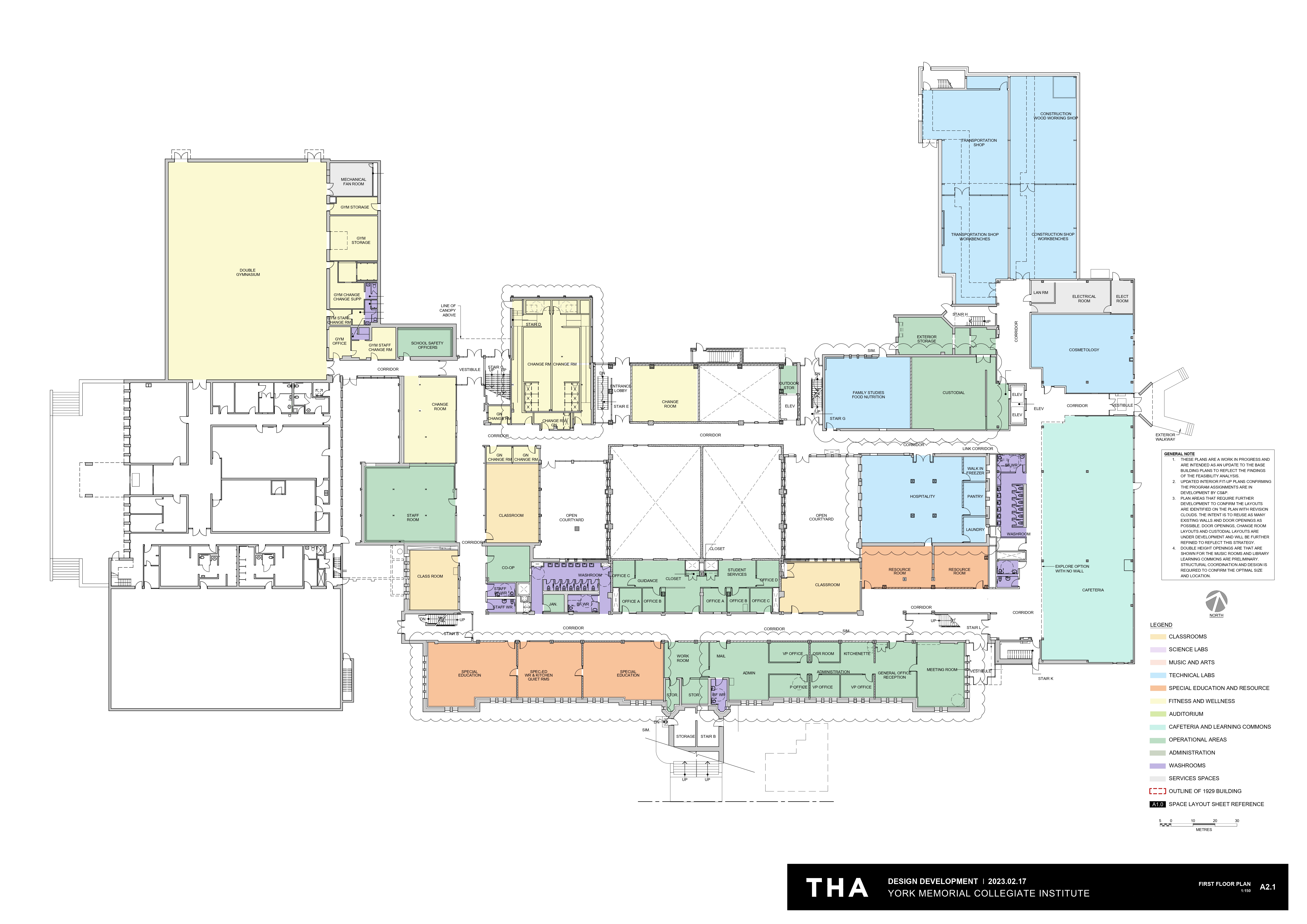
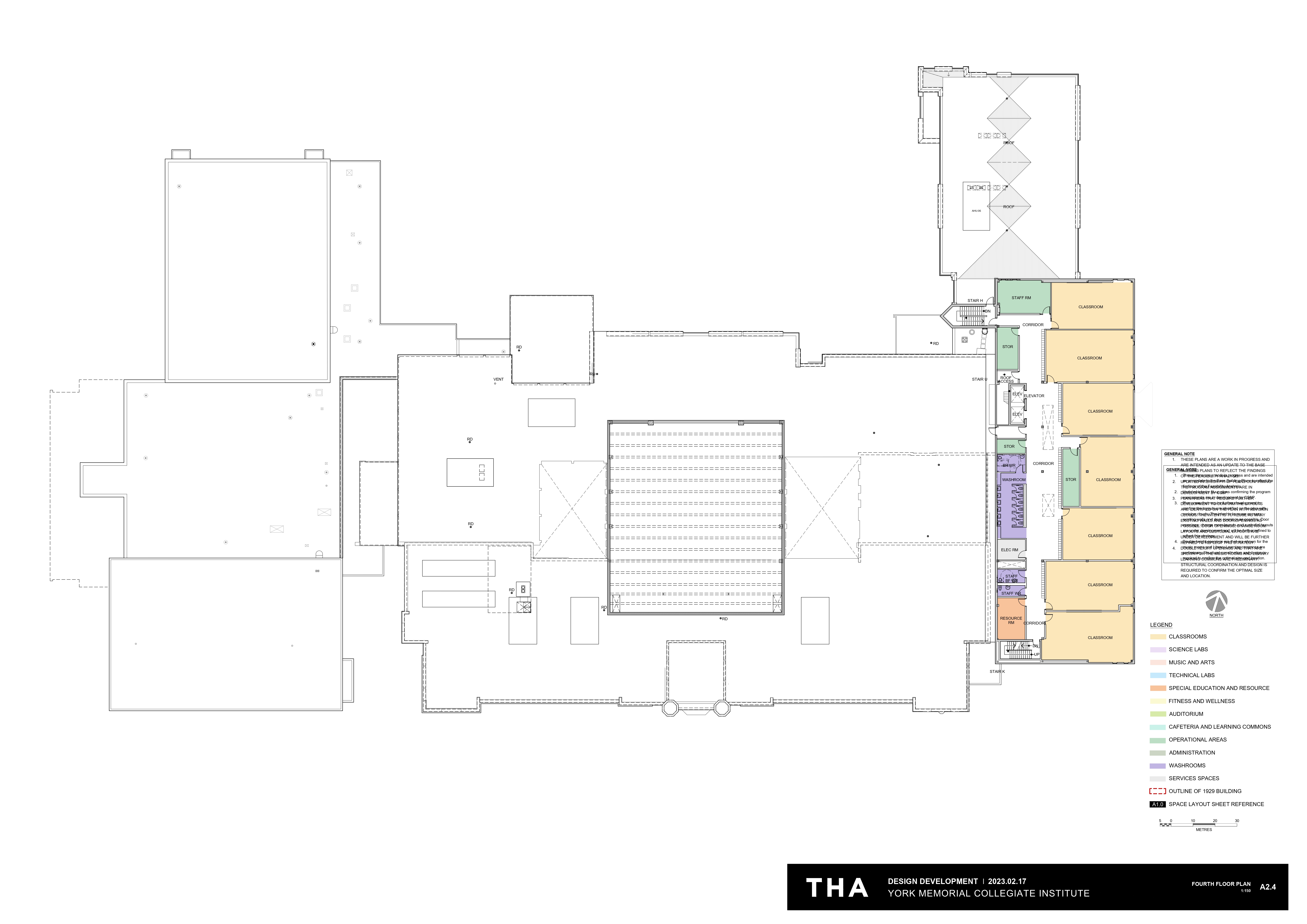
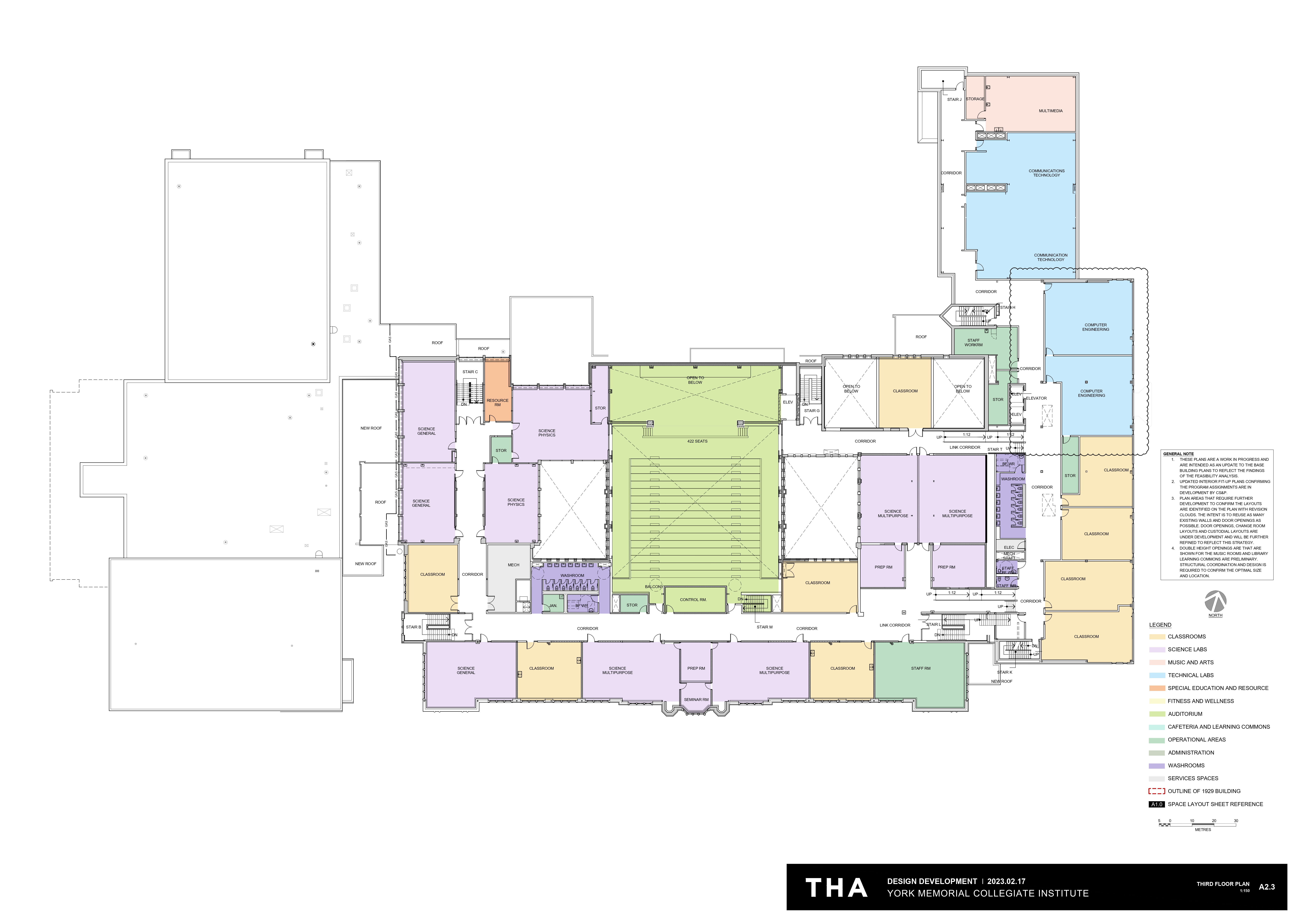
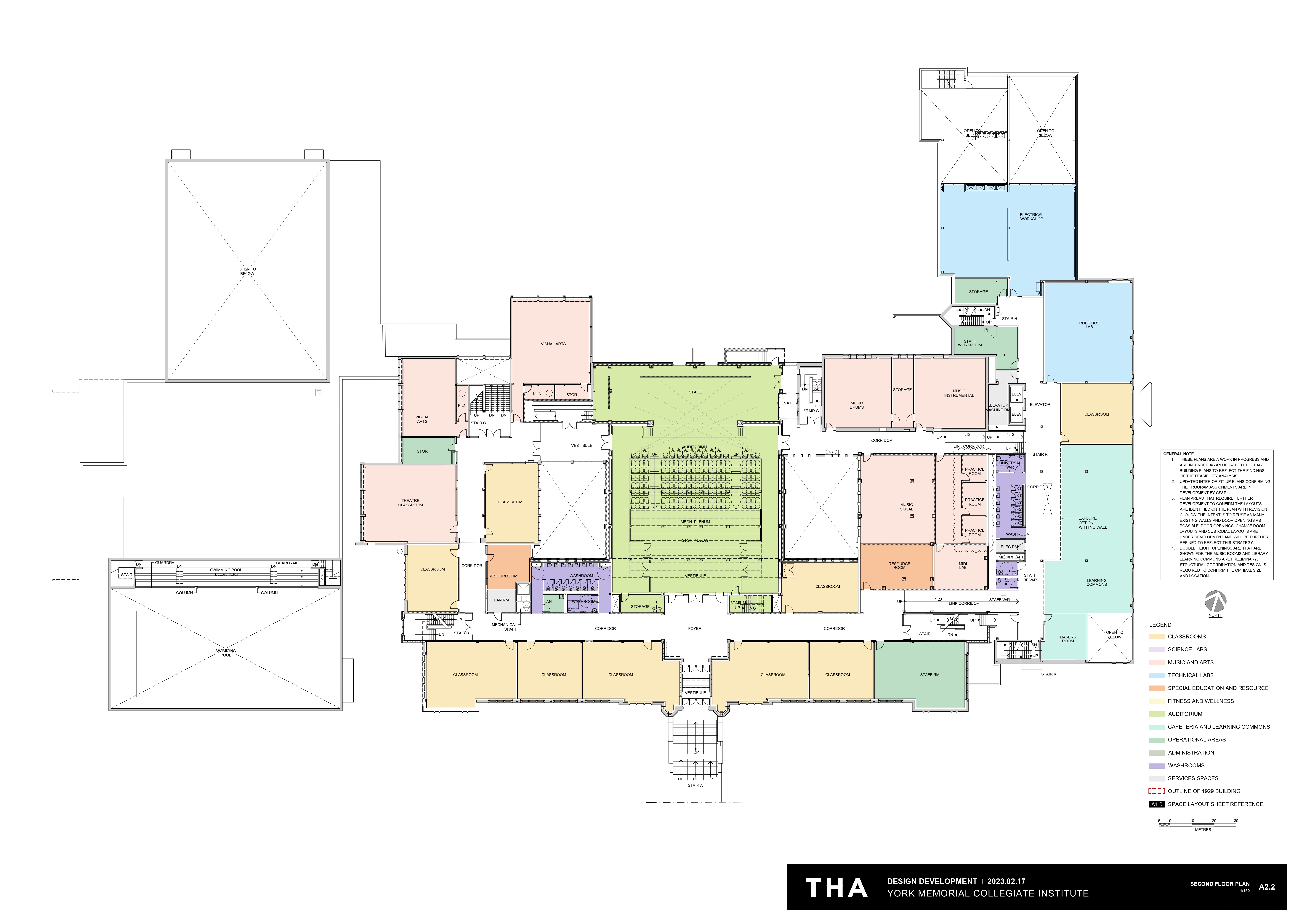
TDSB is currently reconstructing and restoring the original school following a fire in May 2019. The project will accommodate the consolidation of both the George Harvey and York Memorial Collegiate programs in a modernized facility. The new school will have a maximum capacity of 1300 pupil places. This will be achieved by converting the adjacent 2 Trethewey + Annex buildings from TDSB administrative to full academic use. The resulting school will have an area of 193,999 square feet.

Background

The York Memorial Collegiate Institute caught fire in May 2019 and sustained severe damage. Because the school is a Designated Heritage building, efforts were undertaken immediately after the fire to salvage key elements and artifacts and to stabilize the remaining structure. The Heritage aspect also means that the reconstructed building will recreate many significant features of the original school that were lost in the fire, such as the auditorium. The project is made up of three Phases:

  • Phase 1 - the preparation of the site for reconstruction and work on the Heritage south façade. This has been under active construction since 2020.
  • Phase 2 - the reconstruction of the third floor, auditorium and the overall original YMCI footprint.
  • Phase 3 – the reconstruction of 2 Trethewey + Annex as part of the creation of dedicated academic space in this area. Phase 2 +3 are intended to be built at the same time.

The Schematic Design of the project was approved in February 2022. Since that time, the design team has focused on overall design development. The team has obtained approval from Toronto Heritage Preservation Services for the proposed Conservation Plan and has obtained the Heritage Permit – necessary for the release of all Building Permits.

The York Memorial project is funded through both the Ministry of Education approved funding and the Insurance coverage.

Objectives

Once completed the school community will benefit from the following:

  • An expanded facility that combines both GHCI and YMCI programs and school communities.
  • A restored fixed seat auditorium with upgraded equipment.
  • Reconstruction and restoration of heritage significant areas unique to YMCI.
  • New state of the art facilities and classrooms to accommodate specialized program elements from GHCI.
  • All areas within the YMCI footprint will be refurbished and modernized to optimize program delivery.
  • A fully accessible school with new elevator and washroom improvements.
  • Improved overall circulation and wayfinding.
  • Modernized staff areas with better lines of site to both classroom and outdoor areas.

Image Gallery

Project Updates
 

April 1, 2026:  YMCI Construction Update #11

January 30, 2026: YMCI Construction Update #10

November 3, 2025: YMCI Construction Update #9

September 2, 2025: YMCI Construction Update #8

June 26, 2025: YMCI Construction Update #7

May 7, 2025: YMCI Construction Update #6

February 24, 2025: YMCI Construction Update #5

December 16, 2024: YMCI Construction Update #4

September 27, 2024: YMCI Construction Update #3

June 28, 2024: YMCI Construction Update #2

April 30, 2024: YMCI Construction Update #1

March 21, 2023: A community presentation was held to update the community on project progress. Presentation is linked here

 

Project Contact

  • For questions related to this project, please contact Salvatore Beltrano, Manager of Capital Services at Salvatore.Beltrano@tdsb.on.ca, for all other inquiries, please contact the school Principal, Donald Drummond (416)394-3000