Toronto District School Board
Skip to main content

Hodgson Middle School New Addition

Front entrance background picture

 

IN CONSTRUCTION 
SCHOOL ADDITION

HODGSON MIDDLE SCHOOL

Renovation and a three-story addition to Hodgson Middle School to respond to significant accommodation changes
 

 

 

 

Project Address: 282 Davisville Ave, Toronto, ON M4S 1H2

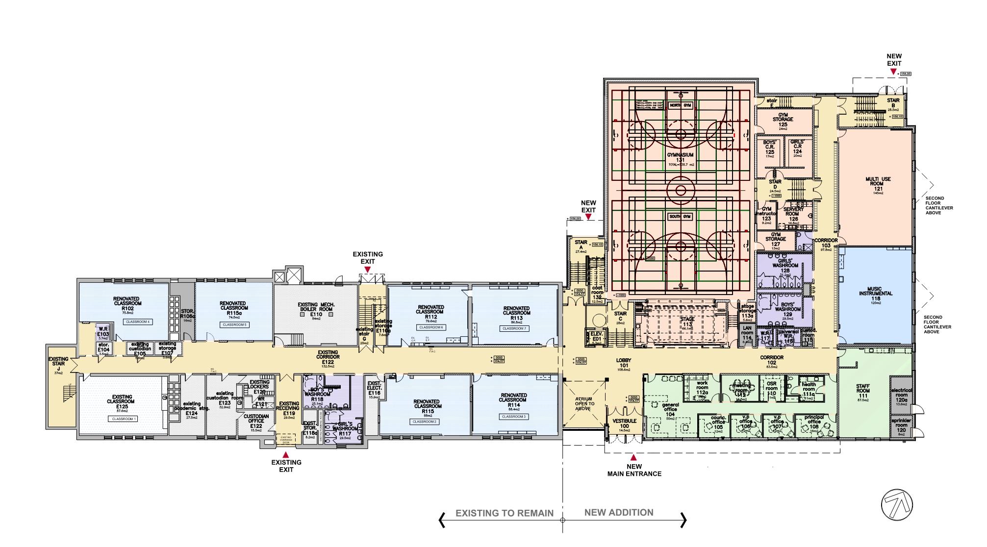
TDSB is renovating and building an addition with 21 new and renovated classrooms in Hodgson Middle School to address increased enrollment pressures in the Yonge-Eglington area. The 3-storey addition will provide the school community permanent classroom spaces and replace existing portables on site. The existing school will greatly benefit from the modernization of the overall facility and improved efficiencies in building systems. The project includes a new state of the art gymnasium with stage, a multipurpose room, and a modern library. In line with TDSB’s commitment to equitable and inclusive spaces, the building will be a fully barrier-free accessible school with a new elevator.

 

Background

In November of 2016 the Ministry of Education (EDU) provided capital funding approval to construct a new 12-Classroom addition to serve 276 students at Hodgson Middle School. The funding was to address the accommodation pressures in the area. The project was required to support the implementation of a TDSB approved plan where Grade 6 students from surrounding over-utilized junior elementary schools were moved to Hodgson MS, formerly a Grade 7 and 8 school. The current school serves approximately 600 students.

Since the approval of the original business case in November of 2016 there were numerous studies completed by both TDSB Planning and the City of Toronto, which identified that the 12-Classroom addition alone would not be sufficient to accommodate increased enrollment pressures expected in the Yonge-Eglington area.

A feasibility study undertaken by TDSB concluded that a “Hybrid Design” which preserves the historically significant 1920’s wing of the building and constructs a new 3 storey addition to replace the 1960’s portion of the building, was required to address the anticipated enrollment pressures.

A revised business case was submitted to the Ministry of Education (EDU) in September of 2019 that identified the need for a larger addition and renovation scope. The revised business case was approved by the EDU in March of 2020 that allowed TDSB to begin the design process.

 

Objectives

Once completed the school community will benefit from the following:

  • Flexibility within the facility to manage current and future enrollment pressures.
  • Permanent classroom spaces within the school and remove the need for portables
  • Enhanced use of outdoor play areas by reinstating landscaping in areas occupied by portables
  • Facility modernization through renovation of existing spaces and addition of new programmed spaces
  • A fully accessible school with new elevator
  • New program spaces including gymnasium with stage, a multipurpose room, a library, a music room, and an art room. 
 
 

Milestone Schedule

Schedule

Milestone Schedule - Accessible Description

 

 

Project Updates

May 8, 2026: May 8, 2026 - Project Update

January 15, 2026: January 15, 2026 - Project Update

October 10, 2025: October 10, 2025 - Project Update

July 7, 2025: July 7, 2025 - Project Update

March 4, 2025: March 4, 2025 - Project Update

December 20, 2024: December 20, 2024 - Project Update

October 31, 2024: October 31, 2024 - Project Update

August 21, 2024: August 21, 2024 - Project Update

May 31, 2024: May 31 2024 - Project Update

December 20, 2023: December 20 2023 - Project Update

September 7, 2023: September 7 2023 - Project Update

 

Project Contact

For questions related to this project, please contact Sofia Di Sabatino, Manager of Project Development & Community Consultation at [email protected]