Background
In 2016, a Pupil Accommodation Review was conducted for 4 elementary schools, Elizabeth Simcoe Jr. PS, Guildwood Jr. PS, Jack Miner Sr. PS and Poplar Road Jr. PS. The review found low enrollment and poor facility conditions among this group of schools.
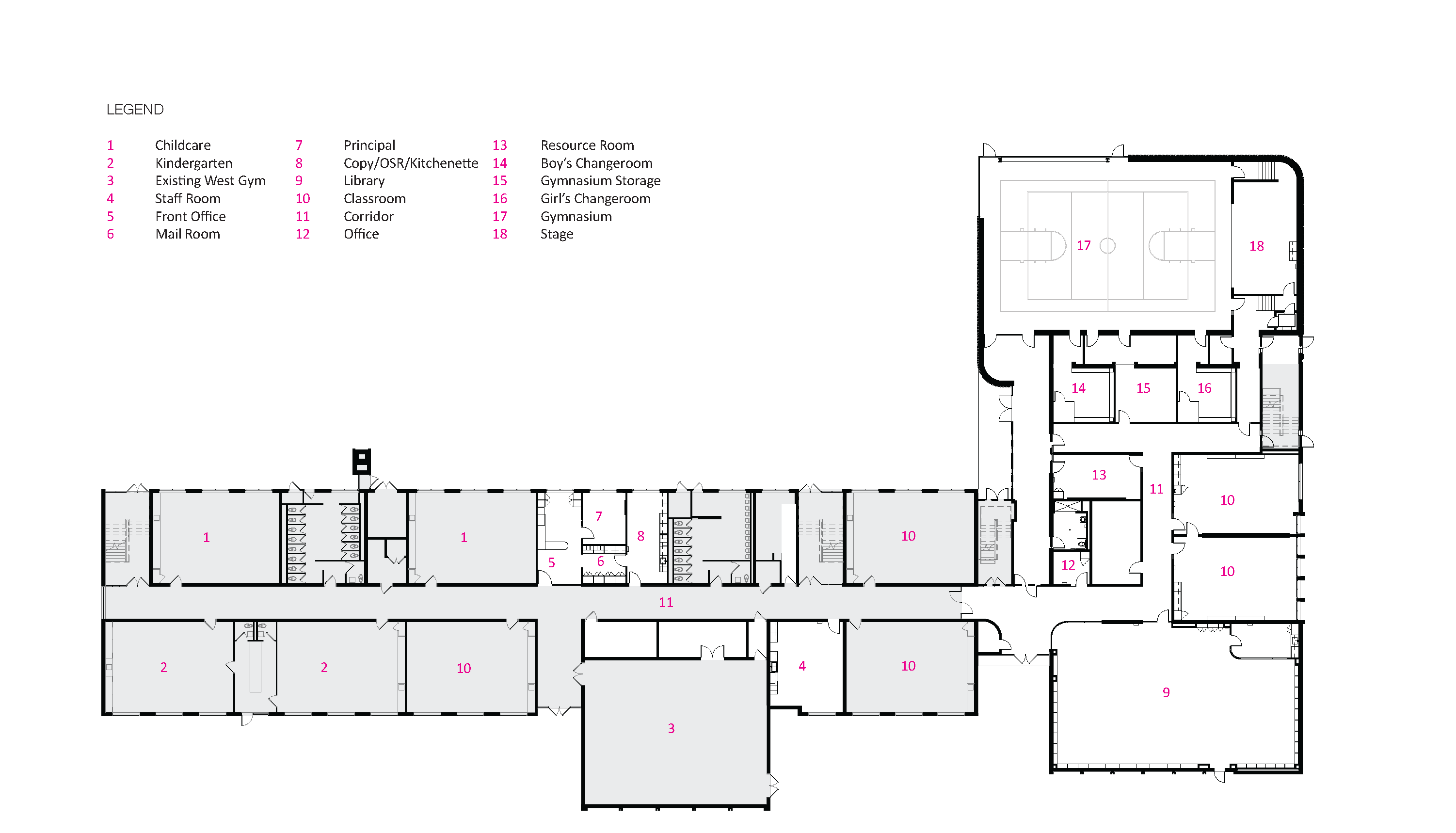
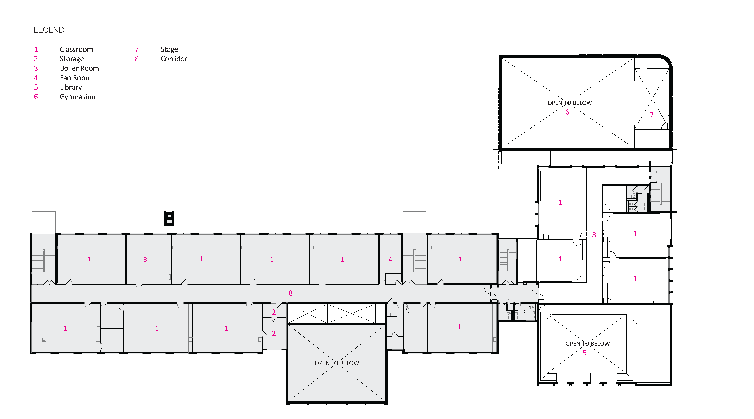
Based on the extensive studies and consultations, it was concluded that consolidating the four schools to three JK to Grade 8 Schools would achieve better utilization rates and improve programming opportunities for students. The approved plan supported the closure of Jack Miner Senior Public School, renovating and expanding Elizabeth Simcoe Junior Public School, and replacing Poplar Road Junior Public School to provide improved facility and accommodate increased enrollment.
In January of 2023, Ministry of Education (EDU) granted permission to the Board to retain an architect to design the expansion and renovation of Elizabeth Simcoe Junior Public School.