Toronto District School Board
Skip to main content

McKee Public School

Front entrance background picture
SCHOOL OPENED
SCHOOL ADDITION

McKee Public School

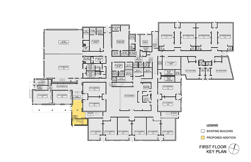
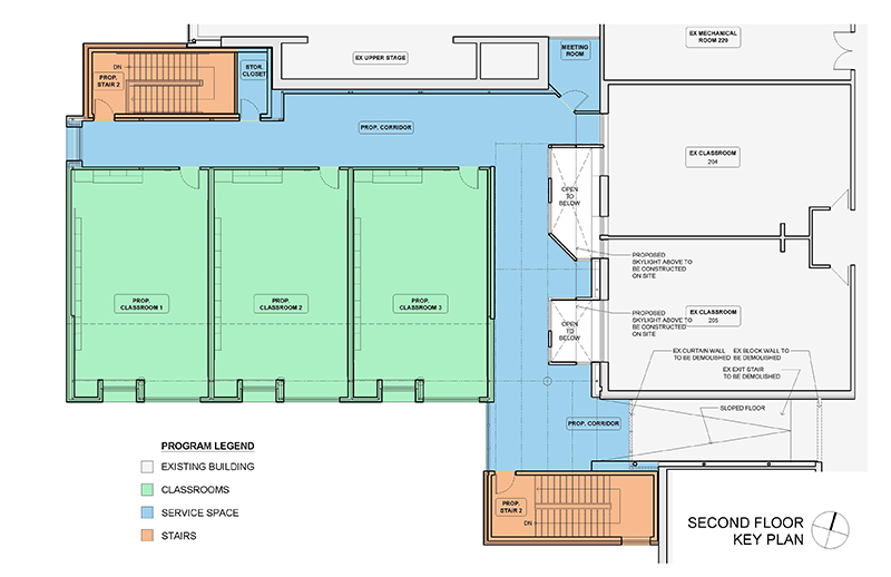
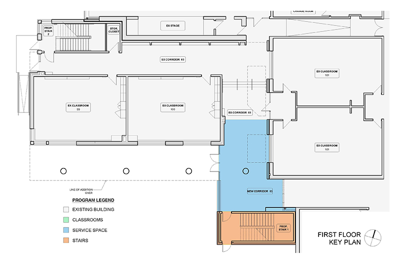
Three classroom addition at McKee Public School to respond to significant accommodation changes.

 

Background

In March of 2020, the Ministry of Education (EDU) provided capital funding approval to construct a new three (3) classroom addition to serve 69 pupil places at McKee Public School. The project is required to support attendance boundary changes between McKee PS, Avondale PS and Hollywood PS, that were required to manage the projected growth in the area (portables will remain necessary after this project is completed).

Since the Ministry of Education approval of the business case, TDSB has completed the Architect selection and the project awarded to Weiss Architecture & Urbanism Limited. 

The Toronto District School Board (TDSB) with their Architectural Consultant are underway with plans for this three-classroom addition to McKee Public School.

Importantly, the design will utilize prefabrication and modular construction methods and technologies with the main objectives being a substantial decrease on-site construction activity and therefore increased site safety, decreasing onsite construction schedule, and to mitigate disruption to school activities and operations.

While the proposed McKee Public School addition is a small project, it is representative of dozens of projects that the TDSB undertakes regularly with its portfolio of 579 schools. For this reason, the TDSB, and the Ministry of Education regard this project as an important ‘case study’ exploring the application of prefabrication and modularity as a rapid delivery construction method to complex existing building contexts.

 

Objectives

Once completed the school community will benefit from the following:

  • Flexibility within the facility to manage current and future enrollment pressures.
  • Three new permanent classroom spaces within the school 
  • New exterior covered entry
  • Renewed asphalt play area

 

 

Project Contact

  • For questions related to this project, please contact: Salvatore Beltrano, Manager, Capital Projects Delivery, Capital Services at Salvatore.Beltrano@tdsb.on.ca 
  • For all other inquiries, please contact the school Principal: Jeanette Lang at jeanette.lang@tdsb.on.ca