Project Address 100 Fallingbrook Rd, Toronto, ON M1N 2T6
The existing Courcelette Public School will undergo renovations and receive a two-storey addition. The school is operating over capacity and has three portables on site. The capacity of the existing facility is 196 pupil places; once the project is completed the capacity will increase to 325 pupil places. The portables will be removed once addition is complete, allowing for use of entire site for outdoor activities.
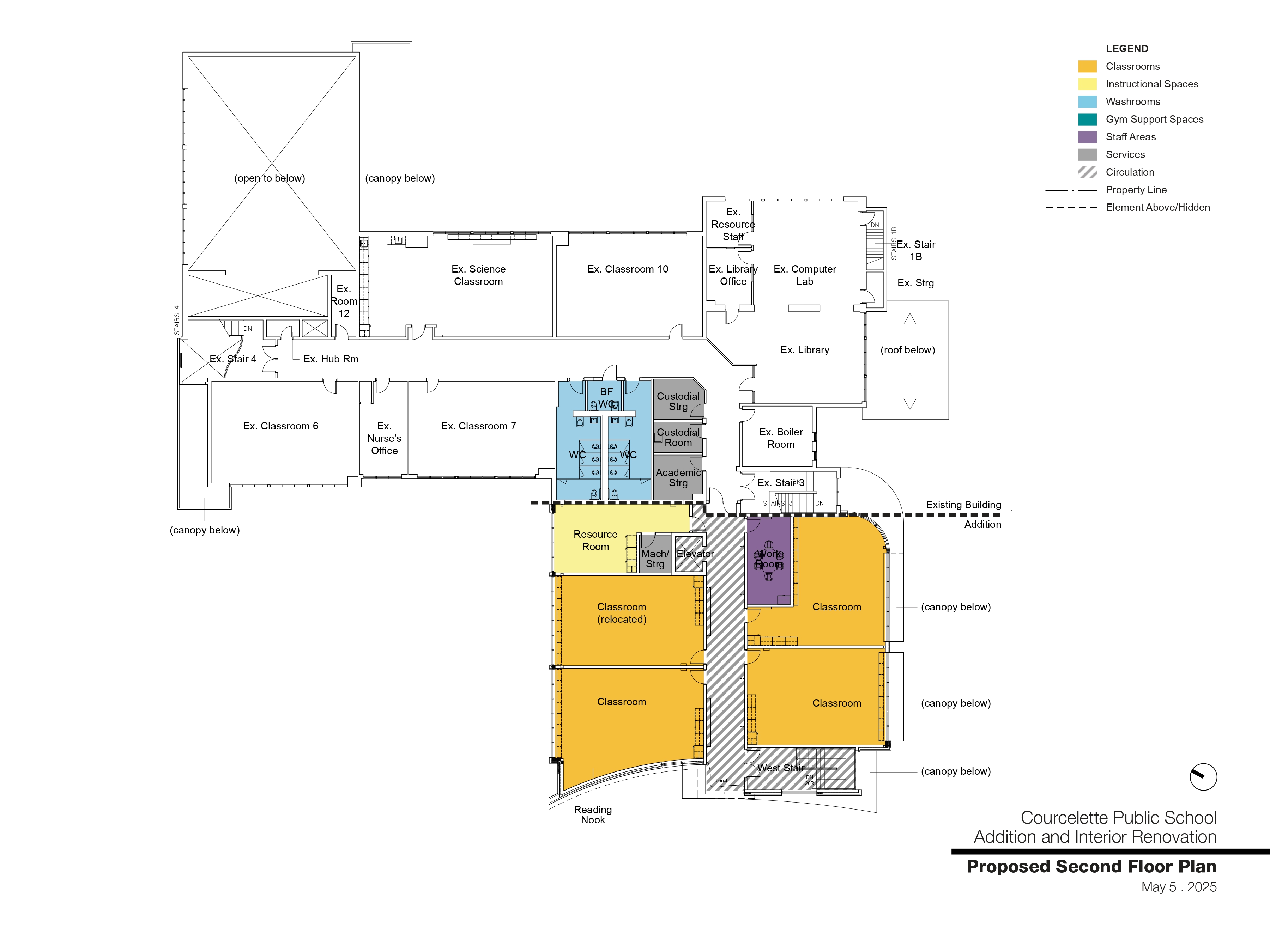
The addition will be located at the southwest corner of the site and will include 7 classrooms, a multi-purpose room, a resource room, a staff room, and an elevator. Renovations in the existing building will include new washrooms on both levels, gym storage and change rooms, and an expanded main office. The project will also address renewal needs and include replacement of deteriorated finishes, millwork, and building systems in existing corridors and classrooms.
Site improvements will include site modifications to accommodate the addition including a modified and repaved parking lot, hard and soft surface play areas, kindergarten playground, and an outdoor classroom.
The project will be phased to allow the school to remain operational throughout the construction process.